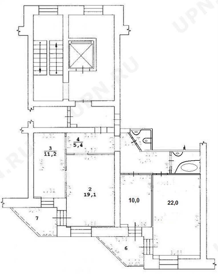
Возможный вариант перепланировки (на основе реальной квартиры выше этажом)