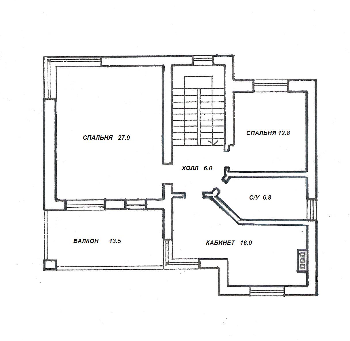
2 этаж