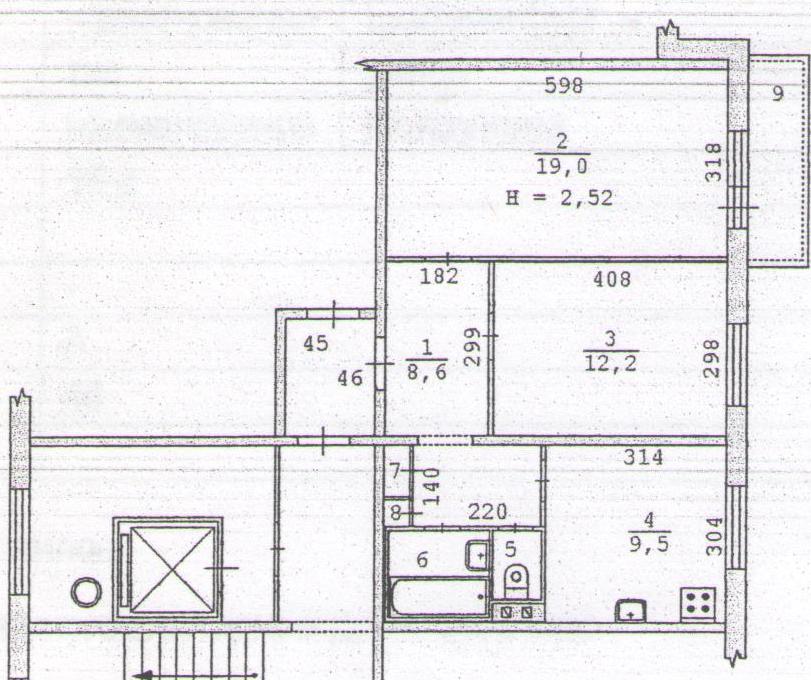
Планировка квартиры